شقة دوبلكس للبيع
هذا الاعلان منتهي
مساحة الشقة
:
190 متر مربع
عنوان الشقة
:
نابلس - - رفيديا
الحالة
:
غير مفروشة
عدد الغرف
:
٣ غرف نوم
عدد الحمامات
:
3
الشقة 190م شامل الخدمات طبعاً
بتصفي 160م
طابقين كل طابق 80م
طابق 3 و طابق 4
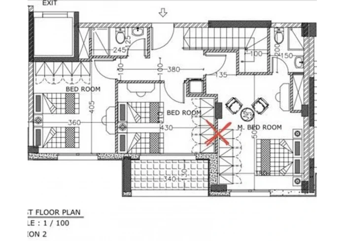
الطابق الاول بالشقة
صالون
حمام
قعده وبرنده
مطبخ ومخزن
الطابق التاني
حمام
غرفة نوم
غرفة نوم مع برنده
غرفة نوم ماستر
في مكان للدرج بين الطابقين
الموقع رفيديا طلعة عبدالرحيم محمود
عماره دانا 5
السعر 85 الف دينار كاش
90 الف دينار اقساط
دفعة اولى 40-45الف دينار و الباقي ع دفاعات شهرية 700 دينار كل شهر
الشقة مأسسلها كهرباء مياه قصارة
العماره فيها خدمات
مصعد
كراج
نظام اطفاء حريق
الشقة ذات اطلاله ممتازه محدا بسكر عليها
امكانية الشراء عن البنك متوفره
الشقة طابو
يوجد مخطط داخلي للشقة
بتصفي 160م
طابقين كل طابق 80م
طابق 3 و طابق 4
الطابق الاول بالشقة
صالون
حمام
قعده وبرنده
مطبخ ومخزن
الطابق التاني
حمام
غرفة نوم
غرفة نوم مع برنده
غرفة نوم ماستر
في مكان للدرج بين الطابقين
الموقع رفيديا طلعة عبدالرحيم محمود
عماره دانا 5
السعر 85 الف دينار كاش
90 الف دينار اقساط
دفعة اولى 40-45الف دينار و الباقي ع دفاعات شهرية 700 دينار كل شهر
الشقة مأسسلها كهرباء مياه قصارة
العماره فيها خدمات
مصعد
كراج
نظام اطفاء حريق
الشقة ذات اطلاله ممتازه محدا بسكر عليها
امكانية الشراء عن البنك متوفره
الشقة طابو
يوجد مخطط داخلي للشقة
470,695
الاسم
:
حمزه دروزه
رقم الهاتف
:
رقم الهاتف لا يظهر في الاعلانات المنتهية
رقم الموبايل
:
رقم الموبايل لا يظهر في الاعلانات المنتهية
تاريخ الاعلان
:
2024-04-27
نهاية الاعلان
:
2024-06-22





